Casa semindipendente in vendita

Villarbasse, Strada del Merlo
€ 259.000
Prezzo aggiornato
6 locali 6 locali
217 Mq 217 Mq
3 bagni 3 bagni

Casa semindipendente in vendita

Villarbasse, Strada del Merlo

Descrizione annuncio

Nel comune di Villarbasse, in una zona tranquilla e panoramica a pochi minuti da Rivoli, proponiamo in vendita una casa semindipendente che unisce comfort, spazio e funzionalità.

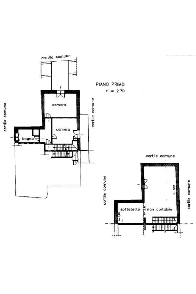
L’ingresso al piano terra conduce direttamente in un ampio e luminoso soggiorno, con una cucina abitabile di generose dimensioni. Da qui si accede al porticato e al giardino privato, ideale per trascorrere momenti di relax all’aria aperta o per ospitare pranzi e cene in compagnia.

La zona giorno è completata da un disimpegno che conduce al primo bagno della casa. Salendo al primo piano, si trovano due camere da letto molto spaziose e luminose: una con accesso a un balcone con splendida vista panoramica, l’altra dotata di uscita su un terrazzino riservato. Sempre al primo piano è presente un secondo bagno finestrato.

Al secondo piano si trova una zona sottotetto, attualmente allo stato grezzo e non abitabile, che offre però ulteriore potenziale di personalizzazione.

Il piano interrato è dedicato agli spazi accessori: una comoda taverna, una cantina, una lavanderia e, tramite porta blindata, l’accesso diretto all’autorimessa comune dove è presente un posto auto coperto di pertinenza.

Questa soluzione è ideale per chi cerca tranquillità senza rinunciare alla vicinanza ai servizi e alla città.

Mostra tutto

Nelle vicinanze

Trasporto pubblico Trasporto pubblico
Villarbasse (Scuole)
Villarbasse (Scuole)
680 m
Villarbasse (v. Braida)
Villarbasse (v. Braida)
770 m
Ricariche auto elettriche Ricariche auto elettriche
Campi Sportivi Villarbasse | EnelX
770 m
Villarbasse Rocciavrè | ENELX
2,5 Km
Scuole Scuole
Scuole
630 m
Scuola Materna
670 m
Scuola Media A. Einstein
2,3 Km
Liceo Vito Scafidi
2,3 Km
Farmacia Farmacia
Farmacia San Nazario
2,0 Km
Farmacia San Carlo
2,4 Km
Farmacia Dr. Gavotti
2,6 Km
Farmacia
2,8 Km
Farmacia Comunale 20
2,9 Km
Supermercati Supermercati
Supermercati
2,4 Km
CRAI
2,5 Km
Negozi Negozi
Negozi
520 m
Panetteria
2,7 Km
Mini Market
2,7 Km
Bar Bar
Bar dell'Angolo
2,7 Km
Bar
2,8 Km
Ristoranti Ristoranti
Trattoria Italia
530 m
Agriturismo La Sosta
2,2 Km
Curandera
2,6 Km
Pari & Dispari
2,7 Km
Mostra tutto

Caratteristiche

Rif.:
61110677
Piano:
4 di 4 (Piano su più livelli)
Posti auto:
1
Balconi:
1
Terrazzi:
1
Camere da letto:
2
Mostra tutto
Prezzo Prezzo
€ 259.000
Rata mutuo Rata mutuo
€ 1.220 / mese
Proponi il tuo prezzoProponi il tuo prezzo

Classe Energetica

E
E
E
E
E
E
E
E
E
EP globale non rinnovabile:
206.67 kW h/m² anno
EP globale rinnovabile:
0.37 kW h/m² anno
EP invernale del fabbricato:
EP estiva del fabbricato:
Anno di costruzione:
1990
Riscaldamento:
Autonomo
Tipo impianto:
A radiatori
Tipo alimentazione:
Metano

Prezzo ridotto di €1 (5%%)

Ti interessa visionare l'immobile?

Fissa un appuntamento  Fissa un appuntamento

Richiedi informazioni

Clicca su Leggi per aprire l'informativa
* Questi campi sono obbligatori

Calcola il tuo mutuo

Semplice e senza impegno
Anticipo

( % )
Mutuo

( % )

pochi semplici passi

inserisci i tuoi dati
Questionario completato
Grazie per aver richiesto un appuntamento senza impegno con un nostro Consulente del Credito e Assicurativo.

Hai inserito correttamente tutti i dati necessari e a breve riceverai una e-mail con un link da convalidare per inviare i tuoi dati.
Affiliato
Studio Rosta Srl
P.zza IV Novembre, 3/c 10090 Rosta (TO)
P.zza IV Novembre, 3/c 10090 Rosta (TO)
Zona: Rosta-Buttigliera-Reano-Villarbasse
Mostra su mappa
Orari: Dal lunedì al sabato: mattino 9:00-12:30 e pomeriggio 14:30-20:00.
Affiliato
Studio Rosta Srl
P.zza IV Novembre, 3/c 10090 Rosta (TO)

2026 Tecnocasa Franchising S.p.A. - P. IVA 08365160152 - Via Monte Bianco 60/A 20089 Rozzano (MI). Ogni agenzia ha un proprio titolare ed è autonoma. Privacy policy | Policy utilizzo | Cookie policy